Item group

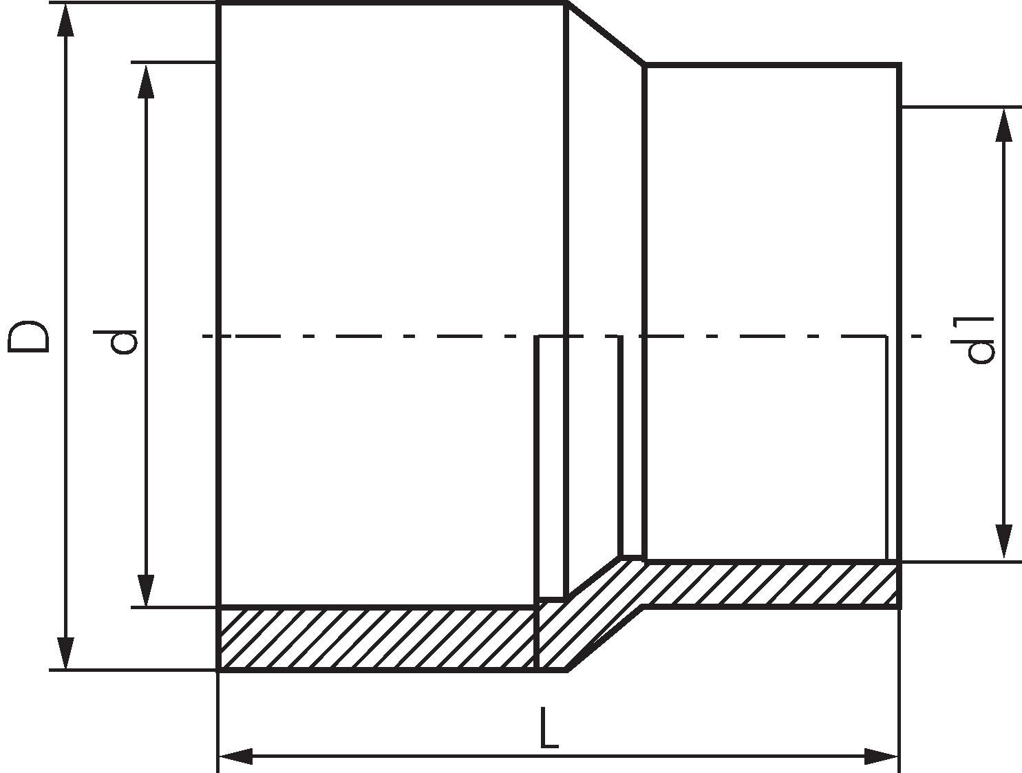
Joiner with adhesive socket / adhesive nipple, PVC-U, PN 16

Exemplary representation: Connectors with adhesive sleeves / adhesive nipples PVC-U Application examples: Reduce PVC pipe Application examples: Reduce adhesive socket
Payment options:

Cash on delivery

Invoice